
SABBOUR HQ
2022
Cairo, Egypt - 2022
Hussein Sabbour Creativity Award
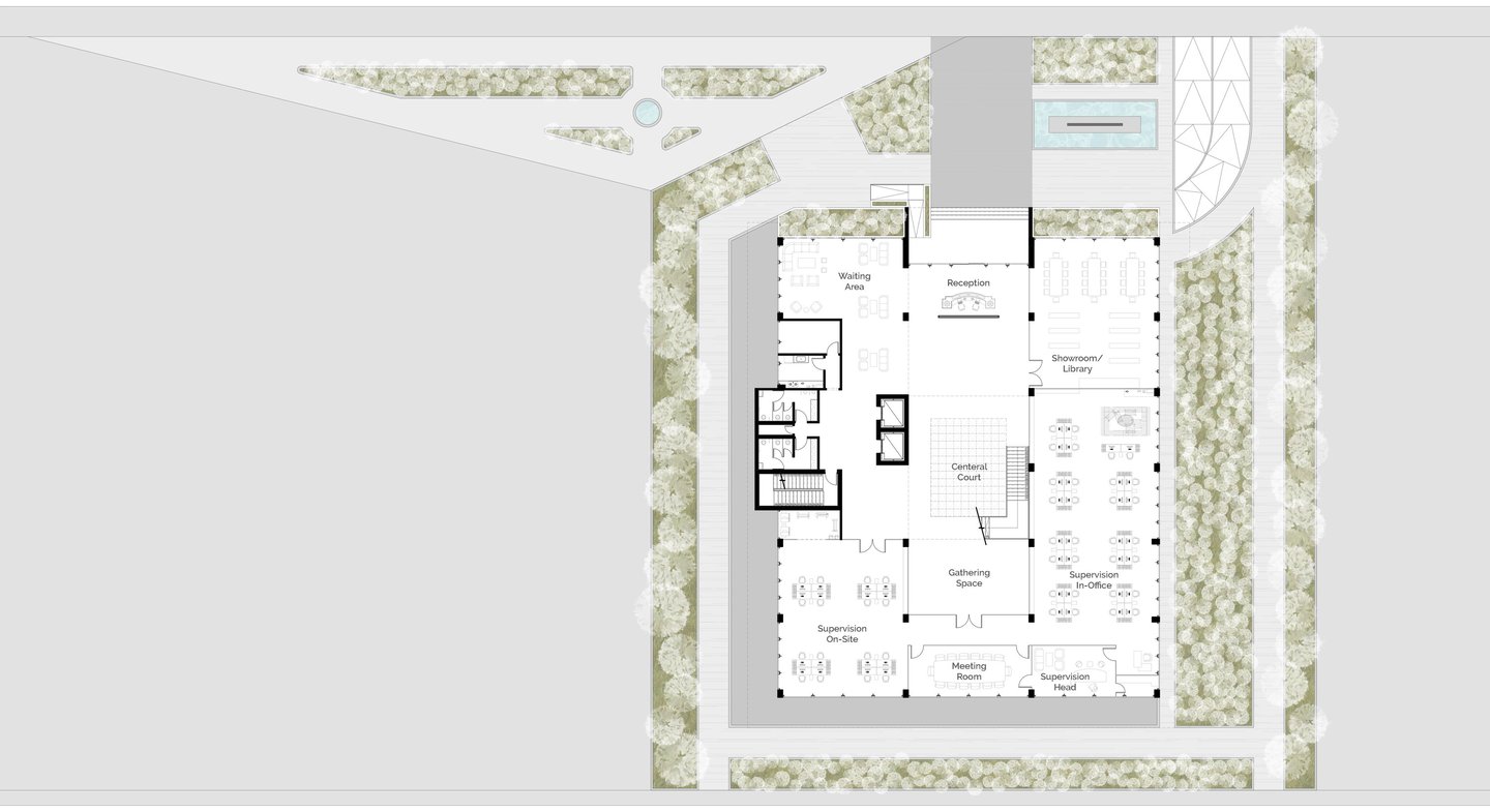
The entire design revolves around sustainability, both for the building and for the people using it. For the building, my goal was to achieve a zero—or ideally negative—carbon footprint. All the facades are covered with green walls and vertical shades, except for the northern one, and the modules are arranged in a dynamic, non-uniform way. I made sure natural light penetrates the whole building through the central court and the surrounding curtain walls so energy consumption stays low. Solar panels are placed across the roof to generate power, and all windows are triple-glazed to provide proper thermal isolation. Ventilation is handled through several strategies: wind catchers, pipes embedded around columns and slabs, grooves in the curtain wall, and a suction system that channels air through the central court.






But sustainability here isn’t only about the building—it’s also about the employees. To support their well-being, I dedicated an entire floor to recreation and comfort. It includes entertainment areas, video games, a gym, a cafeteria, and a prayer room, all located on the third floor so every department can access them easily. I used a free-plan layout to allow full customization depending on employees’ needs, and I positioned all spaces around the central courtyard and exterior glazing so everyone has wide, open views. I also added terraces for fresh air, including designated areas for smokers. To keep everything connected, program elements are arranged by functional relationships on each floor, but all departments link back to the central court and its spiral staircase.























